CT70 Serie Deutschland Kunststoff-Fensterprofil

Deutschland ct70 serie pvc fensterprofil weiße farbe
Deutschland ct70 serie pvc fensterprofil graue farbe

CT-70

✔️ Auffällige Konturen mit prägnanten Softform-Radien und Schrägen an den Sichtflächen

✔️ Unterschiedliche Verstärkungsprofile im Blend- und Flügelrahmen sorgen je nach statischer Anforderung für höchste Stabilität und Langlebigkeit

✔️ Flügelprofile stehen in unterschiedlichen Konturen zur Verfügung (Classic, Rondo, Vision und Accent)

✔️ Die Renovierungsblendrahmen sind speziell auf die landestypischen Anforderungen in der Bausanierung abgestimmt

✔️ Speziell für den niederländischen Markt wurde mit den geometrisch innovativen Block-Blendrahmen die landestypische Holzfensteroptik nachgestellt

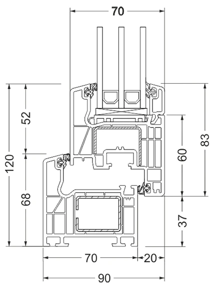
Technische Informationen

technische zeichnung von deutschland ct70 serie pvc fensterprofil


Wie lange halten Schüco Fenster?

Schüco Fenstersysteme sind in der Regel langlebig, da sie aus hochwertigen Materialien hergestellt sind. Die Lebensdauer kann jedoch je nach Nutzungsbedingungen, regelmäßiger Wartung und Montagequalität variieren. In der Regel können Schüco-Fenstersysteme bei ordnungsgemäßer Pflege und Installation länger als 20 Jahre halten.

Der am häufigsten verwendete Kunststoff für die Fensterherstellung ist PVC (Polyvinylchlorid). PVC ist ein robustes, leichtes Material, das Wärmedämmung bietet und leicht zu pflegen ist. Deshalb wird es von den meisten Fensterherstellern bevorzugt.

Es gibt viele große Fensterhersteller in Deutschland, aber einer der größten ist bekanntlich die VEKA AG. VEKA ist ein weltweit bekanntes Unternehmen, das PVC-Profile und Fenstersysteme herstellt.

Der Begriff „bester“ Fensterhersteller hängt von persönlichen Vorlieben, Anforderungen und Budget ab. Viele Marken bieten hochwertige Fensterprodukte an, aber jede hat unterschiedliche Merkmale und Preispunkte. Daher ist der beste Fensterhersteller derjenige, der am besten zu Ihren Bedürfnissen passt.

Die Kosten für ein gutes Kunststofffenster hängen von vielen Faktoren ab, darunter die Fenstergröße, die Glasqualität, zusätzliche Merkmale (z. B. Schalldämmung, Sicherheitsmerkmale), Installationskosten und die wirtschaftliche Situation der Region. Im Allgemeinen liegt der Preis für ein Standard-Kunststofffenster in angemessener Größe